PROYECTO: DISEÑO CASA CAMPESTRE
PROPIETARIO: AIZA ARIAS & FAMILIA
LUGAR: ARMENIA – QUINDIO
AÑO: 2013




PROYECTO: DIBUJO Y RENDERIZACIÓN
LUGAR: CARMEN DE VIBORAL - ANTIOQUIA
AÑO: 2003





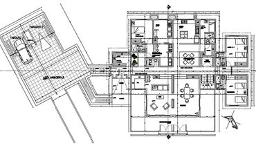
PROYECTO: DISEÑO Y CONSTRUCCION CASA CAMPESTRE SAN JOSE I
PROPIETARIO: GUILLERMO AGUDELO VELASQUEZ
LUGAR: ARMENIA – QUINDIO
AÑO: 2016


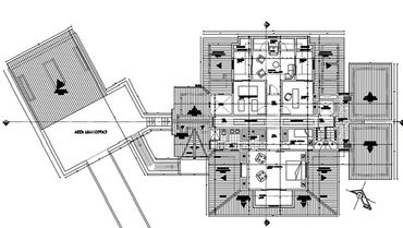
PROYECTO: DISEÑO Y CONSTRUCCION DE VIVIENDA
PROPIETARIO: CARMENZA
LUGAR: ARMENIA – QUINDIO
AÑO: 2013



PROYECTO: DISEÑO CASA CAMPESTRE
PROPIETARIO: EDGAR MOGOLLON
LUGAR: ARMENIA – QUINDIO
AÑO: 2010




Copyright © 2018 Nacad Arquitectos - All Rights Reserved.